森町旧児童館跡地及び周辺整備基本計画について
森町旧児童館及び旧静岡銀行森町支店跡地に、歴史・文化の継承を促進するため、「森のまつり」や「遠江森町の舞楽」等、地域で愛されている伝統・文化の体験・学習機能を有するとともに、来館者が交流・休憩できるスペースを有する体験学習施設を整備します。
また、住民や観光客が当施設及び周辺エリアを訪れやすくするため、駐車場やレンタサイクルの受付等も整備します。
本用地は、観光資源である歴史的・文化的建築物が残るエリアにあり、町外からの観光客等の来訪が見込まれるため、来訪者に対して森町の伝統や文化に関する情報を発信する拠点を整備する場所として適しており、また周辺施設との相乗効果も期待できます。
位置図

施設コンセプト
基本方針(施設主用途)
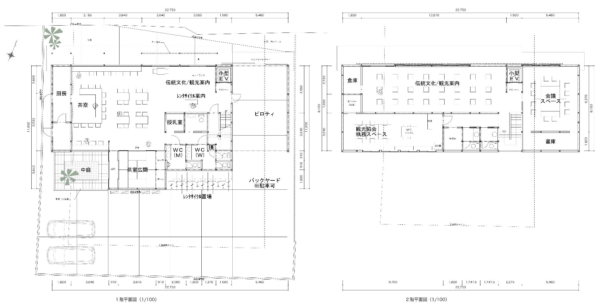
伝統文化/観光案内、茶寮(カフェスペース)
イベントスペース、観光協会事務局
施設機能
- 伝統文化及び特産品紹介機能
- 情報発信拠点機能(観光案内機能)
- 住民、来訪者交流拠点機能
外観イメージ図(基本計画時点での検討案となっております。)

外観イメージ図(基本計画) (PDFファイル: 9.4MB)
平面図(基本計画時点での検討案となっております)

フォーカスコンテンツ
森町茶
お茶で知られる遠州森町は、高級茶の産地として全国的にその名を知らしめている。
健康志向の高まりによりお茶が世界各国で注目、市場が急速成長している。様々な特徴を持つ森町において、グローバル視点で「お茶」にフォーカスしたい。
このページに関する
お問い合わせ先Inquiry
産業政策課 観光振興係
〒437-0215
静岡県周智郡森町森2101-2
電話番号:0538-85-6316








更新日:2026年01月14日